espacio B12 arquitectos
Obra
Estudio
Otros servicios
Contacto
More
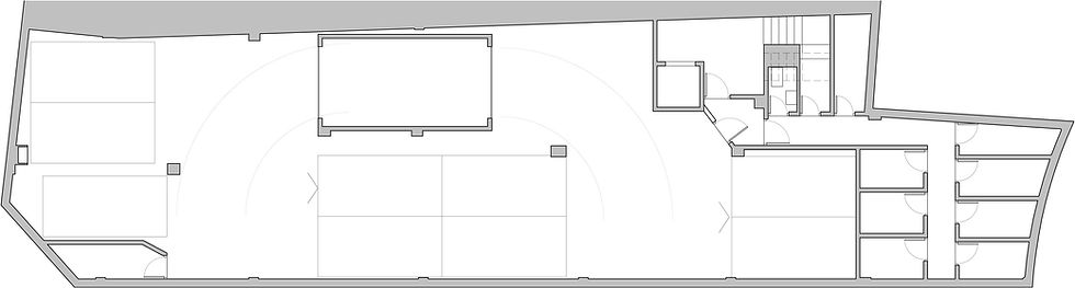
Trasteros con acceso desde zonas comunes de la edificación.